PUPPY PALACE
Follows is the final design for the Puppy Palace. A new franchise for 2022. It is the premier puppy sales company in the US. Special design has been done and can be seen by contacting our company.All designs are trade marked and copy written. Contact Charlie Heath @ 678-200-9951













Here you see added mechanicals to the plan. Mechanicals include HVAC,power and technical remark. The next plan is underway so look for more editions to this section of our site
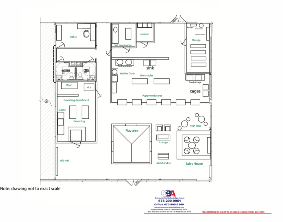
Here you see how we apply the needed components into the submitted space. Note the difference between the proceeding page. Here we are working with a narrow space so the components have to be reduced in size yet keeping the look the franchisor needs. There are more options we could do but this one was the design the owner liked. In the next drawing you will see the next required design.
A larger plan we developed showing the needed components for the franchise. In the following pages you will see how we design the submitted space to make best use of the required items.
This page was received from the client. It gave us a basic floor plan showing the space the franchise owner was looking at to lease.
As you will see in the leasing review showing the customer how to lease a space with out getting screwed in the process. Our work on interior design
starts not. We try to put the needed components in the space always taking into account the cost of fitting out the location.


All designs are developed using our new quad system. You can see how it works with different sizes of location. Quads can be added or deleted depending on size). Quads can be built in a central location and can be sent into a location for install. This can eliminate as much as six weeks of on-site Construction.
CBA LLC. uses Dodge Data and the Blue Book to set up contractors in any area of the country. We establish a plan room and send out a bid request to all contractors in a geographic area. In the plan room the plans will be available as a PDF for down load and bidding.
The bids will come into CBA. They are review and interviewed.
Three contractors will be approved and presented to the client for a decision as to which one will be given the contract for construction.
































